


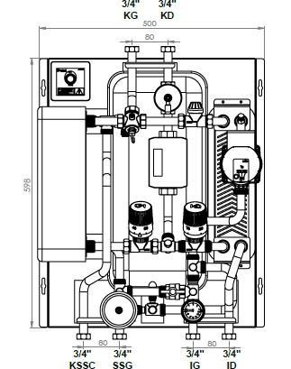
TermoHexa istasyonlarında kontrol sıcaklığa bağlı, yani termostatik olarak yapılır. Kullanım sıcak suyu hazırlama işlemi ile ısıtma işlemi aynı anda gerçekleşir. ThermoHexa içerisinde bulunan ve sıcaklığa bağlı çok hızlı tepki gösteren özel tasarım termostatik vana sayesinde, yüksek verimde çalışır. Özel Kompak tasarımı sayesinde, cihazı monte etmek pratik ve kolaydır. ThermoHexa içerisinde bulunan SWEP marka eşanjörler ve ithal borular, AISI 316 kalite paslanmaz çelikten imal edilmiştir, bu sayede alüminyum radyotörlerle bile kullanımına olanak sağlamıştır.